Chambre JL
Plan de

Détails du plan
- Plan commencé le 11/02/2025 à 18:40 par jled
- Modifié le 12/03/2025 à 09:53 par jled
- Partage : Utilisation
Mots clés
Liste des pièces
Aucune pièce n'a été créé sur ce plan.
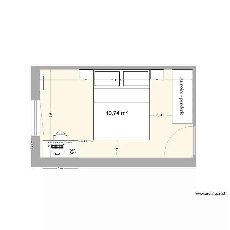
Liste des objets
| Nom de l'objet | Nombre |
|---|---|
| Armoire - penderie 150 cm | 1 |
| Bureau rectangulaire 140 X 80 cm | 1 |
| Lit queen size | 1 |
| Radiateur radiant 1000W | 1 |
| Table de chevet | 2 |
Lien vers ce plan
Lien pour partager le plan Chambre JL
Image du plan
Copier et coller le code ci dessous
Partagez ce plan
Vous aimez ce plan ?
Cliquez sur J'aime et gagnez des fonctionnalités