EFB 3
Plan de 0 pièce et 0 m2.

Description
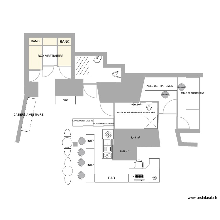
VESTIAIRE /WC PERSONNE HANDICAPE /WC/DOUCHE
Détails du plan
- Plan commencé le 30/10/2025 à 16:35 par MONTETH
- Modifié le 17/11/2025 à 10:10 par MONTETH
- Partage : Utilisation
Mots clés
Liste des pièces
- BANC
- BOX VESTIAIRES
- BANC
Liste des objets
Lien vers ce plan
Lien pour partager le plan EFB 3
Image du plan
Copier et coller le code ci dessous
Partagez ce plan
Vous aimez ce plan ?
Cliquez sur J'aime et gagnez des fonctionnalités
Plans de 0 pièce et de 5 à 15 m2
Voir tout les plans de 0 pièce et de 5 à 15 m2
Plans de 0 pièce
Voir tout les plans de 0 pièce
Plans de 5 à 15 m2
Voir tout les plans de 5 à 15 m2