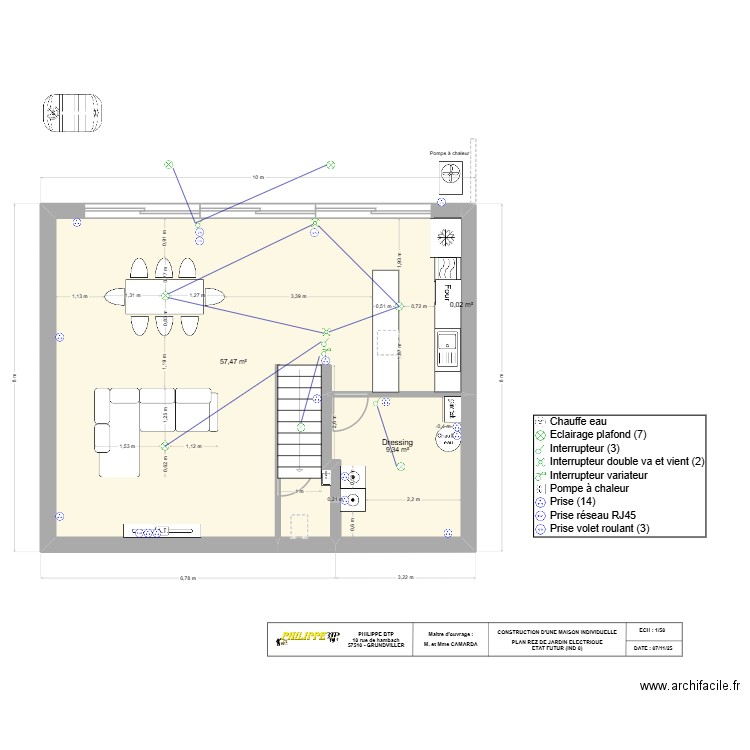
REZ DE JARDIN LOT C CRUSNES ELEC
Plan de

Description
LOT B - CRUSNES
Détails du plan
- Plan commencé le 13/11/2025 à 23:34 par James PHILIPPE
- Modifié le 13/11/2025 à 23:34 par James PHILIPPE
- Partage : Utilisation
Mots clés
Liste des pièces
Aucune pièce n'a été créé sur ce plan.
Liste des objets
Lien vers ce plan
Lien pour partager le plan REZ DE JARDIN LOT C CRUSNES ELEC
Image du plan
Copier et coller le code ci dessous
Partagez ce plan
Vous aimez ce plan ?
Cliquez sur J'aime et gagnez des fonctionnalités