OTA ETAGE
Plan de

Détails du plan
- Plan commencé le 30/05/2025 à 14:11 par mab2a
- Modifié le 01/06/2025 à 09:50 par mab2a
- Partage : Utilisation
Mots clés
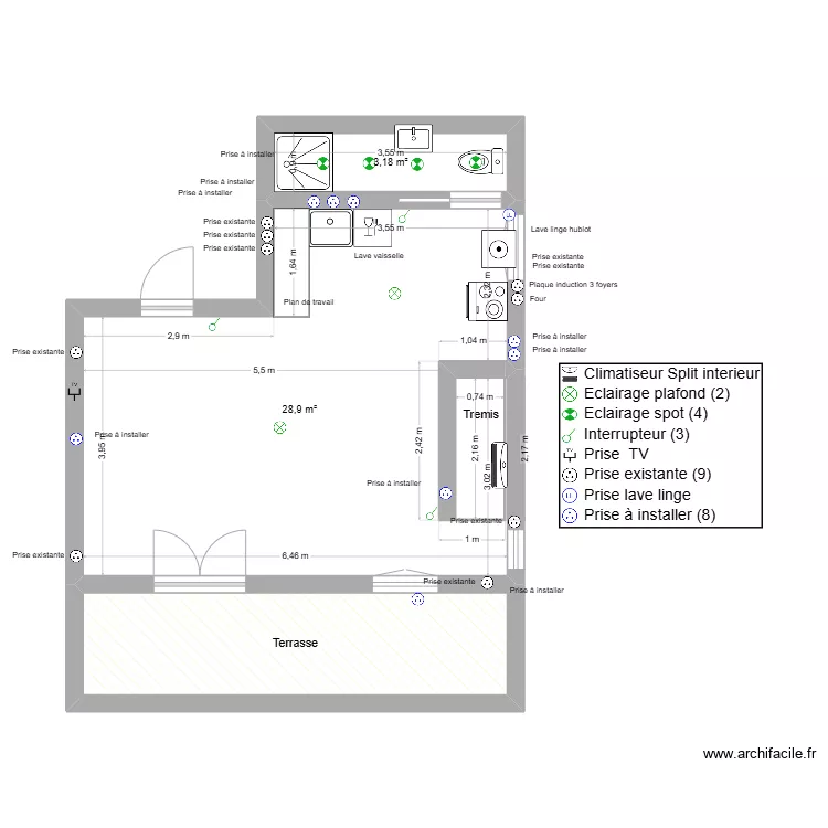
Liste des pièces
Aucune pièce n'a été créé sur ce plan.
Liste des objets
| Nom de l'objet | Nombre |
|---|---|
| Légende | 1 |
| Climatiseur Split interieur | 1 |
| Eclairage plafond | 2 |
| Eclairage spot | 4 |
| Evier 1 vasque | 1 |
| Four | 1 |
| Interrupteur | 3 |
| Lave linge hublot | 1 |
| Lave vaisselle 12 couverts | 1 |
| Meuble 1 lavabo integré | 1 |
| Plan de travail | 1 |
| Plaque induction 3 foyers | 1 |
| Prise | 17 |
| Prise TV | 1 |
| Prise lave linge | 1 |
| Receveur douche | 1 |
| WC standard | 1 |
Lien vers ce plan
Lien pour partager le plan OTA ETAGE
Image du plan
Copier et coller le code ci dessous
Partagez ce plan
Vous aimez ce plan ?
Cliquez sur J'aime et gagnez des fonctionnalités