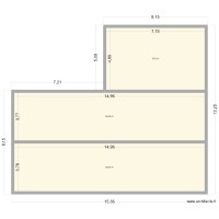
RONDEAU

Plan de 3 pièces et 179 m2.

Description

CHANGEMENT MAGASIN

Détails du plan

  • Plan commencé le 02/10/25 par RomsBchr
  • Modifié le 03/10/25 par RomsBchr
  • Partage : Utilisation

Mots clés

A construire A louer A rénover A vendre Appartement Atelier Bureau Chez moi Coupe Duplex Electricité Extension Facade Ferme Garage Jardin Loft Magasin Maison Piscine
  • Liste des pièces

  • Liste des objets

    Nom de l'objet Nombre
    Chaise 3
    Etagère redimenssionnable 10
    Plan de travail bout arrondi 2

    Lien vers ce plan

    Lien pour partager le plan RONDEAU


    Image du plan

    Copier et coller le code ci dessous


    Partagez ce plan


    Vous aimez ce plan ?

    Cliquez sur J'aime et gagnez des fonctionnalités



    Signaler ce plan


    Plans de 3 pièces et de 170 à 190 m2

    Vide-Sanitaire

    par Supercharlo

    Détails

    Vide-Sanitaire

    salon

    par LiorBior

    Détails

    salon

    Somone

    par Philsomone

    Détails

    Somone

    plan carport et veranda plus piscine

    par Isanab

    Détails

    plan carport et veranda plus piscine

    Albertini espace jeux enfants

    par MICAELLI VERONIQUE

    Détails

    Albertini espace jeux enfants

    plan garage ext E32

    par MelTabary

    Détails

    plan garage ext E32

    Voir tout les plans de 3 pièces et de 170 à 190 m2


    Plans de 3 pièces

    plan bureaux rh

    par HSETARAMM

    Détails

    plan bureaux rh

    A04 reversibilité

    par pierrelouisptv

    Détails

    A04 reversibilité

    jardin

    par sbruneau

    Détails

    jardin

    Messigny maison RDC

    par lutchmaya

    Détails

    Messigny maison RDC

    test début

    par NalaMuller

    Détails

    test début

    béa21

    par sarl30

    Détails

    béa21

    Voir tout les plans de 3 pièces


    Plans de 170 à 190 m2

    Kingabwa 23

    par Helicia

    Détails

    Kingabwa 23

    Pâtisserie Unifilaire

    par ZAHIDY

    Détails

    Pâtisserie  Unifilaire

    chassage dependance

    par agenda36

    Détails

    chassage dependance

    Hddn club

    par AliceJude

    Détails

    Hddn club

    plan cadastre

    par MB2tgo

    Détails

    plan cadastre

    plan magasin 2025/2026

    par AlexisCHAILLOUX

    Détails

    plan magasin 2025/2026

    philippe

    par patou05051962

    Détails

    philippe

    Plan 18X12 Clien 46 08 94 78

    par elveta24

    Détails

    Plan 18X12 Clien 46 08 94 78

    Voir tout les plans de 170 à 190 m2