Labo patisserie PFE
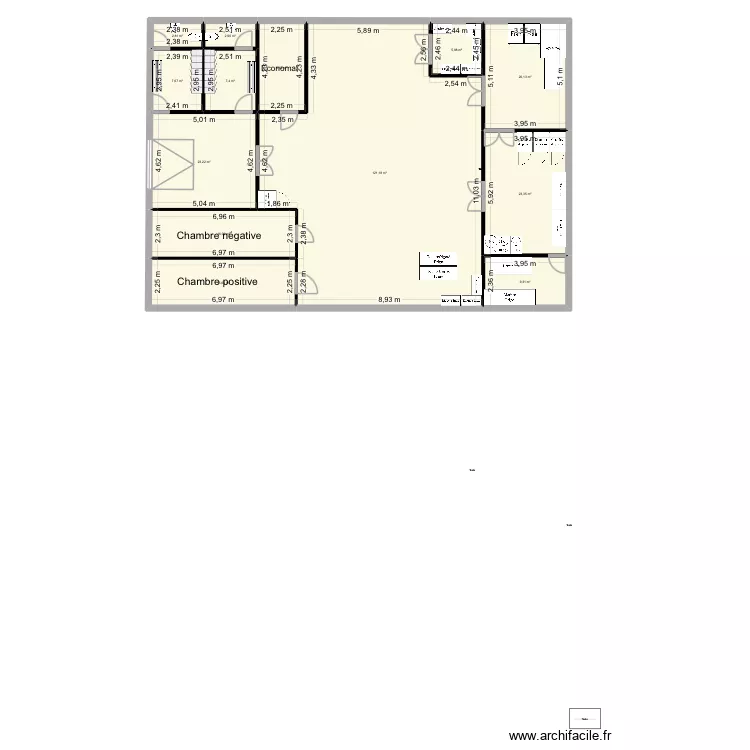
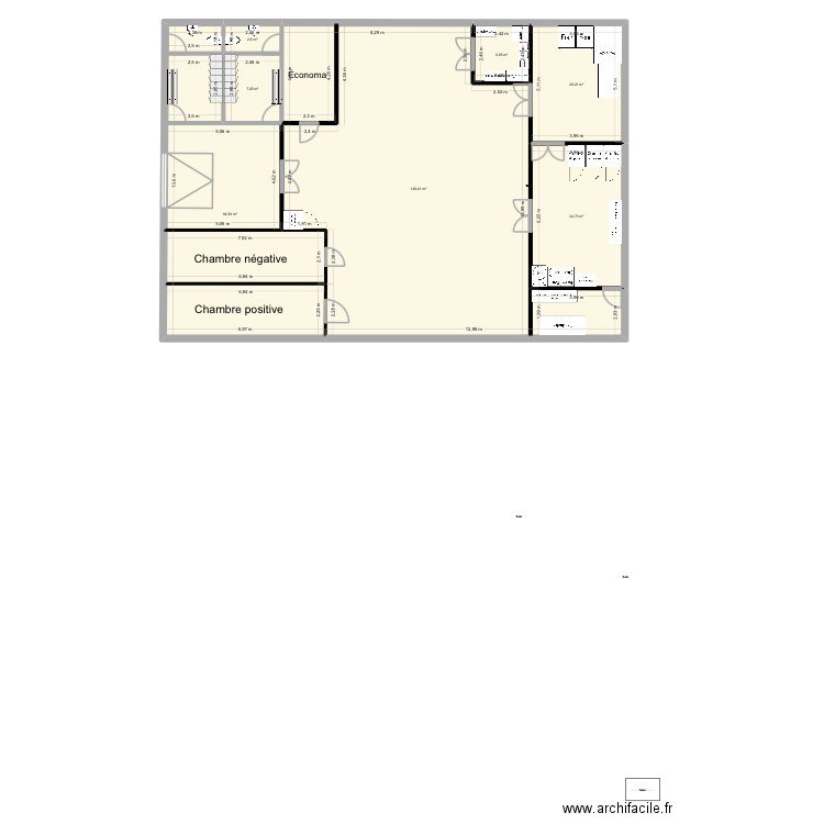
Plan de 13 pièces et 265 m²

Détails du plan
- Plan commencé le 10/11/2025 à 16:58 par DOLEANSSacha
- Modifié le 11/11/2025 à 17:45 par DOLEANSSacha
- Partage : Lecture
Mots clés
Liste des pièces
Liste des objets
| Nom de l'objet | Nombre |
|---|---|
| Texte | 15 |
| Légende | 1 |
| Banc | 1 |
| Batteur 60L | 1 |
| Cellule de refroidissement | 1 |
| CH de pousse | 3 |
| Étagère Inox | 6 |
| Évier 2 bacs | 1 |
| Four | 2 |
| Four a sole | 1 |
| Laminoire | 1 |
| Lavabo | 2 |
| Marbre frigo | 1 |
| Meuble cuisine haut 40 cm | 14 |
| Pétrin 40L | 2 |
| Plan de travail Inox | 1 |
| Plonge | 1 |
| Tout réfrigéré frigo | 2 |
| WC standard | 2 |
Lien vers ce plan
Lien pour partager le plan Labo patisserie PFE
Image du plan
Copier et coller le code ci dessous
Partagez ce plan
Vous aimez ce plan ?
Cliquez sur J'aime et gagnez des fonctionnalités
Plans de 13 pièces et de 250 à 270 m2
Voir tout les plans de 13 pièces et de 250 à 270 m2
Plans de 13 pièces
Voir tout les plans de 13 pièces
Plans de 250 à 270 m2
Voir tout les plans de 250 à 270 m2