casa4
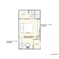
Plan de 5 pièces et 20 m²

Détails du plan
- Plan commencé le 04/12/2025 à 15:49 par Manteijackyorangefr
- Modifié le 04/12/2025 à 16:06 par Manteijackyorangefr
- Partage : Utilisation
Mots clés
Liste des pièces
Liste des objets
| Nom de l'objet | Nombre |
|---|---|
| Boussole 1 | 1 |
| casa | 1 |
| Piscine 8 x 4 | 1 |
| Toiture 4 pans | 1 |
Lien vers ce plan
Lien pour partager le plan casa4
Image du plan
Copier et coller le code ci dessous
Partagez ce plan
Vous aimez ce plan ?
Cliquez sur J'aime et gagnez des fonctionnalités
Plans de 5 pièces et de 15 à 25 m2
Voir tout les plans de 5 pièces et de 15 à 25 m2
Plans de 5 pièces
Voir tout les plans de 5 pièces
Plans de 15 à 25 m2
Voir tout les plans de 15 à 25 m2