atelier ELECTRICITE
Plan de

Détails du plan
- Plan commencé le 29/11/2024 à 11:30 par loniam50
- Modifié le 29/11/2024 à 11:30 par loniam50
- Partage : Utilisation
Mots clés
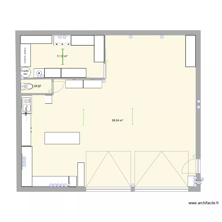
Liste des pièces
Aucune pièce n'a été créé sur ce plan.
Liste des objets
| Nom de l'objet | Nombre |
|---|---|
| Armoire | 3 |
| Armoire - penderie 150 cm | 1 |
| Caisson à tiroir | 2 |
| Chauffe eau | 1 |
| Congélateur coffre 200 L | 1 |
| Eclairage plafond | 1 |
| Eclairage Tube à fluorescence | 5 |
| Etagère redimenssionnable | 8 |
| Évier 1 bac avec meuble | 1 |
| Ilot central | 1 |
| Interrupteur | 4 |
| Lave linge hublot | 1 |
| Prise | 18 |
| Prise congélateur | 1 |
| Prise Cumulus | 1 |
| Prise de terre | 1 |
| Prise lave linge | 1 |
| Prise sèche linge | 1 |
| Table basse | 2 |
| Tableau électrique | 1 |
| WC standard | 1 |
Lien vers ce plan
Lien pour partager le plan atelier ELECTRICITE
Image du plan
Copier et coller le code ci dessous
Partagez ce plan
Vous aimez ce plan ?
Cliquez sur J'aime et gagnez des fonctionnalités