ELECTRICITE ACCACIAS
Plan de

Détails du plan
- Plan commencé le 17/12/2025 à 07:30 par CRAF92
- Modifié le 14/01/2026 à 07:09 par CRAF92
- Partage : Utilisation
Mots clés
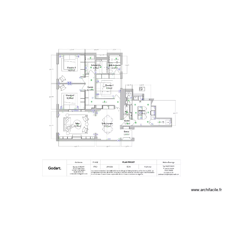
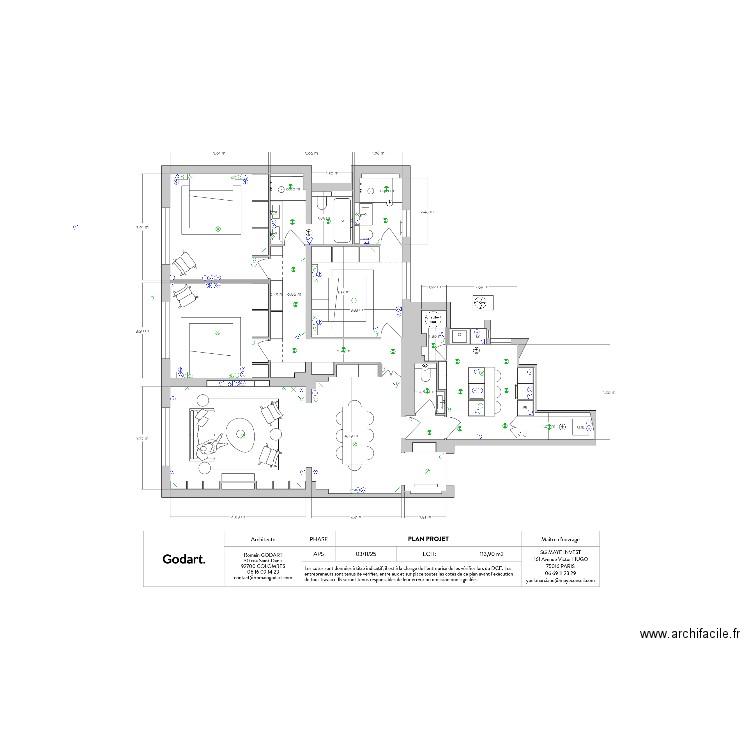
Liste des pièces
Aucune pièce n'a été créé sur ce plan.
Liste des objets
| Nom de l'objet | Nombre |
|---|---|
| Chauffe eau | 1 |
| Climatiseur bloc exterieur | 1 |
| Eclairage applique | 12 |
| Eclairage plafond | 8 |
| Eclairage spot | 20 |
| Interrupteur | 16 |
| Interrupteur double | 7 |
| Point lumineux | 9 |
| Prise | 2 |
| Prise | 31 |
| Prise four | 1 |
| Prise haute | 11 |
| Prise lave linge | 1 |
| Prise lave vaisselle | 1 |
| Prise plaque de cuisson | 1 |
| Prise réseau RJ45 | 7 |
| Prise sèche linge | 1 |
| Prise USB | 6 |
| VMC bouche d'extraction | 5 |
Lien vers ce plan
Lien pour partager le plan ELECTRICITE ACCACIAS
Image du plan
Copier et coller le code ci dessous
Partagez ce plan
Vous aimez ce plan ?
Cliquez sur J'aime et gagnez des fonctionnalités