wc la gare
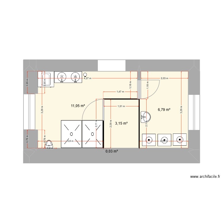
Plan de 4 pièces et 21 m²

Détails du plan
- Plan commencé le 24/11/2025 à 16:41 par vincent Acquitter
- Modifié le 24/11/2025 à 17:19 par vincent Acquitter
- Partage : Utilisation
Mots clés
Liste des pièces
Liste des objets
| Nom de l'objet | Nombre |
|---|---|
| Lavabo | 1 |
| Lave linge hublot | 3 |
| Meuble 2 vasques | 1 |
| Poubelle | 1 |
| Receveur douche extra plat | 2 |
| Table à langer | 1 |
| Urinoir | 1 |
Lien vers ce plan
Lien pour partager le plan wc la gare
Image du plan
Copier et coller le code ci dessous
Partagez ce plan
Vous aimez ce plan ?
Cliquez sur J'aime et gagnez des fonctionnalités
Plans de 4 pièces et de 15 à 25 m2
Voir tout les plans de 4 pièces et de 15 à 25 m2
Plans de 4 pièces
Voir tout les plans de 4 pièces
Plans de 15 à 25 m2
Voir tout les plans de 15 à 25 m2