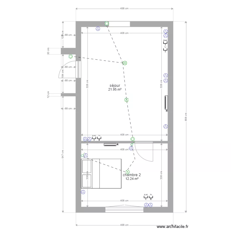
électricité séjour chambre2
Plan de

Détails du plan
- Plan commencé le 31/01/2025 à 14:03 par m4maire
- Modifié le 12/02/2025 à 14:57 par m4maire
- Partage : Utilisation
Mots clés
Liste des pièces
Aucune pièce n'a été créé sur ce plan.
Liste des objets
| Nom de l'objet | Nombre |
|---|---|
| Boite de dérivation | 2 |
| Eclairage plafond | 3 |
| Interrupteur | 2 |
| Interrupteur bouton poussoir | 3 |
| Lit double standard | 1 |
| Prise | 13 |
| Prise RJ45 | 3 |
| Prise TV | 3 |
| Radiateur radiant 1000W | 2 |
Lien vers ce plan
Lien pour partager le plan électricité séjour chambre2
Image du plan
Copier et coller le code ci dessous
Partagez ce plan
Vous aimez ce plan ?
Cliquez sur J'aime et gagnez des fonctionnalités