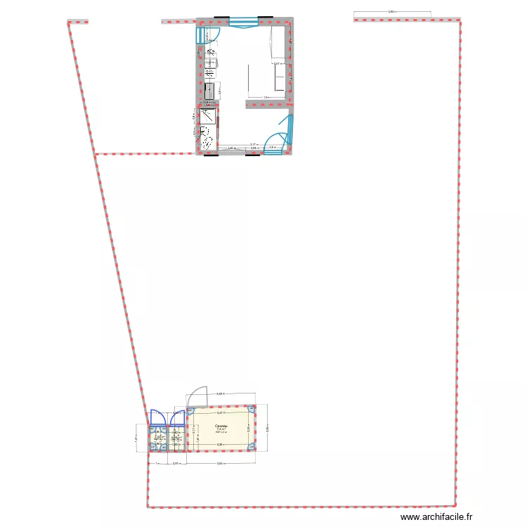
Plan Le Lany
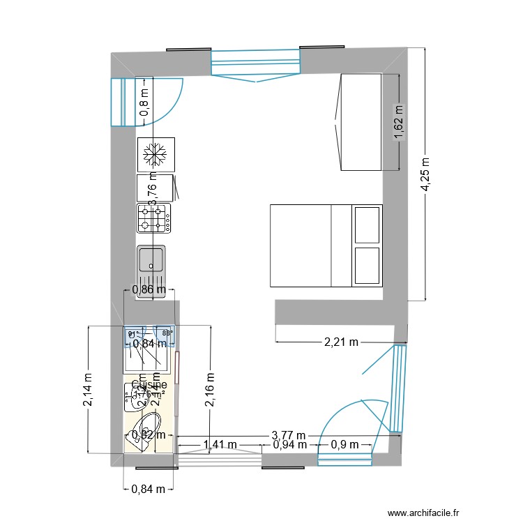
Plan de 3 et 10 m²

Détails du plan
- Plan commencé le 19/02/2026 à 20:56 par Hainry
- Modifié le 20/02/2026 à 16:27 par Hainry
- Partage : Lecture
Mots clés
Liste des pièces
- Caveau
Liste des objets
| Nom de l'objet | Nombre |
|---|---|
| Évier 1 bac | 1 |
| Lavabo | 1 |
| Lit double standard | 1 |
| Meuble cuisine 1 porte | 1 |
| Meuble cuisine 3 tiroirs | 1 |
| Plaque gaz | 1 |
| Receveur douche | 1 |
| Refrigerateur congelateur | 1 |
| WC standard | 1 |
Lien vers ce plan
Lien pour partager le plan Plan Le Lany
Image du plan
Copier et coller le code ci dessous
Partagez ce plan
Vous aimez ce plan ?
Cliquez sur J'aime et gagnez des fonctionnalités
Plans de 3 pièces et de 5 à 15 m2
Voir tout les plans de 3 pièces et de 5 à 15 m2
Plans de 3 pièces
Voir tout les plans de 3 pièces
Plans de 5 à 15 m2
Voir tout les plans de 5 à 15 m2