cassou 1
Plan de

Détails du plan
- Plan commencé le 22/10/2025 à 11:26 par polo38470
- Modifié le 22/10/2025 à 12:20 par polo38470
- Partage : Utilisation
Mots clés
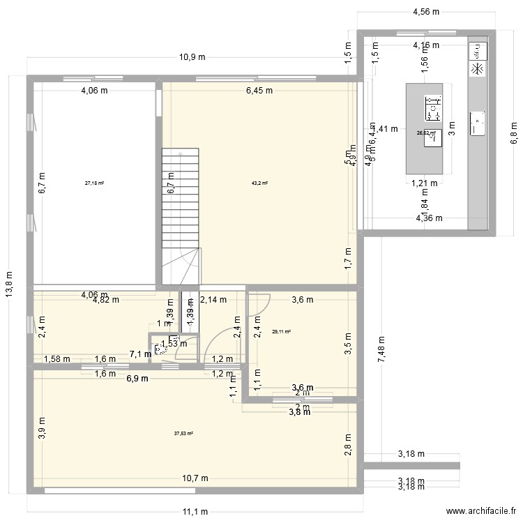
Liste des pièces
Aucune pièce n'a été créé sur ce plan.
Liste des objets
| Nom de l'objet | Nombre |
|---|---|
| Armoire - penderie 150 cm | 1 |
| Escalier quart tournant | 1 |
| Évier 1 bac | 1 |
| Lave main | 1 |
| Lave vaisselle 12 couverts | 1 |
| Piano de cuisson 5 foyers | 1 |
| Plan de travail | 2 |
| Réfrigérateur | 1 |
| Réfrigérateur | 1 |
| WC suspendu | 1 |
Lien vers ce plan
Lien pour partager le plan cassou 1
Image du plan
Copier et coller le code ci dessous
Partagez ce plan
Vous aimez ce plan ?
Cliquez sur J'aime et gagnez des fonctionnalités