Abris de Jardin Floridan
Plan de 2 et 16 m²

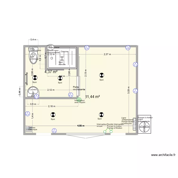
Détails du plan
- Plan commencé le 12/03/2026 à 10:59 par DanielMazy
- Modifié le 12/03/2026 à 17:26 par DanielMazy
- Partage : Utilisation
Mots clés
Liste des pièces
Liste des objets
| Nom de l'objet | Nombre |
|---|---|
| Texte | 21 |
| Climatiseur bloc exterieur | 1 |
| Eclairage spot | 6 |
| Interrupteur | 1 |
| Interrupteur bouton poussoir avec voyant | 1 |
| Interrupteur double | 1 |
| Lavabo | 1 |
| Poêle à bois rond | 1 |
| Prise | 8 |
| Radiateur à inertie 1000W | 1 |
| Receveur douche | 1 |
| Sèche-serviettes électrique à inertie 1000 W | 1 |
| Tableau 1x13 | 1 |
| WC standard | 1 |
Lien vers ce plan
Lien pour partager le plan Abris de Jardin Floridan
Image du plan
Copier et coller le code ci dessous
Partagez ce plan
Vous aimez ce plan ?
Cliquez sur J'aime et gagnez des fonctionnalités
Plans de 2 pièces et de 10 à 20 m2
Voir tout les plans de 2 pièces et de 10 à 20 m2
Plans de 2 pièces
Voir tout les plans de 2 pièces
Plans de 10 à 20 m2
Voir tout les plans de 10 à 20 m2