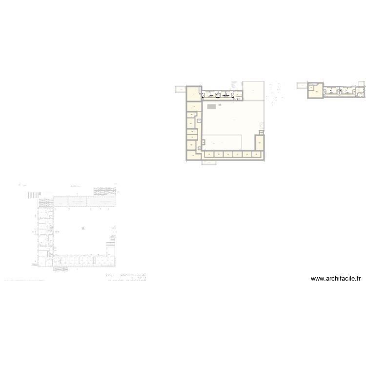
Salle Prieuré gîte Papa
Plan de 0 pièce et 0 m2.

Détails du plan
- Plan commencé le 07/02/2026 à 11:37 par ketiyosh
- Modifié le 07/02/2026 à 11:37 par ketiyosh
- Partage : Utilisation
Mots clés
Liste des pièces
- bar
- salle de restaurant/ petit déjeuner
- salle de restaurant/ petit déjeuner
- stockage/local poubelle
- ascenseur
- stock materiel
- plonge
- circulation
- office pdj
- vestiaire perso
- Chambre froide + stockage
- ascenceur de service
- bureau reception / direction
- reception
- circulation
- Cuisine
- stockage livraison
- plonge / office
- couloir / stockage vaisselle
- Cuisine/patisserie
- vestiaire personnel
- ascenseur
- ascenseur de service
- Chambre 1
- Chambre 2
- Chambre 3
- Chambre 4
- Chambre 6
- Chambre 5
- Chambre 8
- Chambre 7
- Suite 1
- Junior suite 1
- junior suite 2
- Chambre 9
- lingerie/stock
- ascenseur
- Suite 2
- Chambre 14
- Chambre 13
- Chambre 12
- Chambre 11
- Chambre 10
- suite nuptial 2
Liste des objets
Lien vers ce plan
Lien pour partager le plan Salle Prieuré gîte Papa
Image du plan
Copier et coller le code ci dessous
Partagez ce plan
Vous aimez ce plan ?
Cliquez sur J'aime et gagnez des fonctionnalités