Lorette 3
Plan de

Détails du plan
- Plan commencé le 04/03/2024 à 13:35 par B3C1
- Modifié le 22/01/2025 à 15:39 par B3C
- Partage : Modification
Mots clés
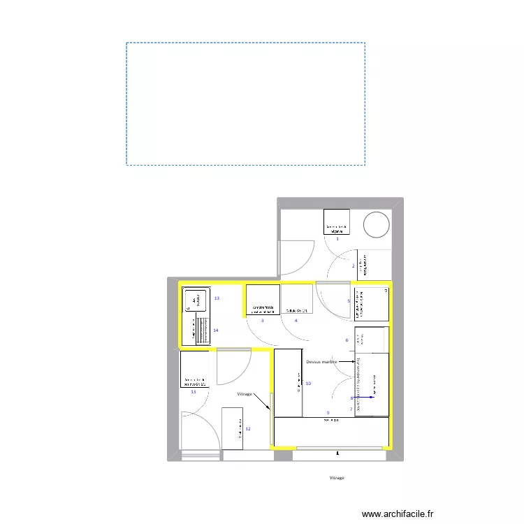
Liste des pièces
Aucune pièce n'a été créé sur ce plan.
Liste des objets
| Nom de l'objet | Nombre |
|---|---|
| Texte | 18 |
| Attente câble | 2 |
| Attente EC | 1 |
| Attente EF | 3 |
| Attente flèche | 3 |
| Attente flèche | 15 |
| Attente prise | 5 |
| Attente vidange | 3 |
| Attentes | 1 |
| Cercle | 1 |
| Codigel AGR positive 1 porte | 1 |
| Coldline Clima positive 1 porte | 1 |
| Coreco MRP-150 | 1 |
| Ecomax F504 | 1 |
| Etagère murale 1500x400 | 1 |
| Foster cellule ED | 1 |
| Meuble à tiroirs | 1 |
| Meuble neutre 1600x700 | 1 |
| Rectangle | 1 |
| Table inox 2700 | 1 |
| Unox Bakertop 10 niveaux 600x400 | 1 |
Lien vers ce plan
Lien pour partager le plan Lorette 3
Image du plan
Copier et coller le code ci dessous
Partagez ce plan
Vous aimez ce plan ?
Cliquez sur J'aime et gagnez des fonctionnalités