Cuisine v2
Plan de

Détails du plan
- Plan commencé le 13/08/2025 à 15:27 par arcadeganne
- Modifié le 18/08/2025 à 23:28 par arcadeganne
- Partage : Utilisation
Mots clés
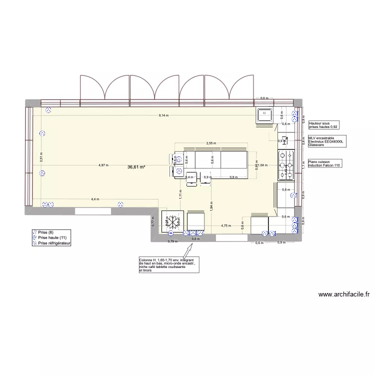
Liste des pièces
Aucune pièce n'a été créé sur ce plan.
Liste des objets
| Nom de l'objet | Nombre |
|---|---|
| Texte | 4 |
| Légende | 1 |
| Chaise haute bar | 4 |
| Evier 1 vasque | 1 |
| Flêche | 1 |
| Ilot central | 1 |
| Lave vaisselle 12 couverts | 1 |
| Meuble cuisine 1 porte | 3 |
| Meuble cuisine 3 tiroirs | 4 |
| Meuble cuisine d'angle | 2 |
| Piano de cuisson 6 foyers | 1 |
| Prise | 8 |
| Prise haute | 11 |
| Prise réfrigérateur | 1 |
| Refrigerateur congelateur | 1 |
Lien vers ce plan
Lien pour partager le plan Cuisine v2
Image du plan
Copier et coller le code ci dessous
Partagez ce plan
Vous aimez ce plan ?
Cliquez sur J'aime et gagnez des fonctionnalités