
| Nom de l'objet | Nombre |
|---|---|
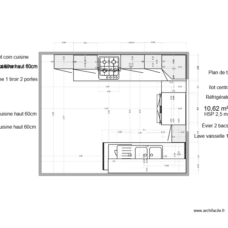
| Évier 2 bacs | 1 |
| Ilot central | 1 |
| Lave vaisselle 12 couverts | 1 |
| Meuble cuisine 1 tiroir 2 portes | 1 |
| Meuble cuisine haut 60cm | 5 |
| Meuble haut coin cuisine | 1 |
| Plan de travail | 1 |
| Plaque gaz | 1 |
| Réfrigérateur | 1 |
Lien pour partager le plan cuisine boulard
Copier et coller le code ci dessous
Cliquez sur J'aime et gagnez des fonctionnalités
Voir tout les plans de 0 pièce et de 5 à 15 m2
Voir tout les plans de 0 pièce
Voir tout les plans de 5 à 15 m2