
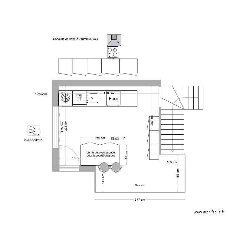
Aucune pièce n'a été créé sur ce plan.
| Nom de l'objet | Nombre |
|---|---|
| Texte | 4 |
| Bar | 2 |
| Escalier quart tournant | 1 |
| Évier 1 bac | 1 |
| Four | 1 |
| Four micro ondes | 1 |
| Hotte murale | 1 |
| Lave vaisselle 12 couverts | 1 |
| Meuble cuisine 1 porte | 8 |
| Meuble cuisine 1 tiroir 2 portes | 2 |
| Meuble cuisine 15 cm | 2 |
| Plaque électrique | 1 |
| Refrigerateur congelateur | 1 |
| Tabouret de bar | 2 |
Lien pour partager le plan Cuisine amémagement 1
Copier et coller le code ci dessous
Cliquez sur J'aime et gagnez des fonctionnalités