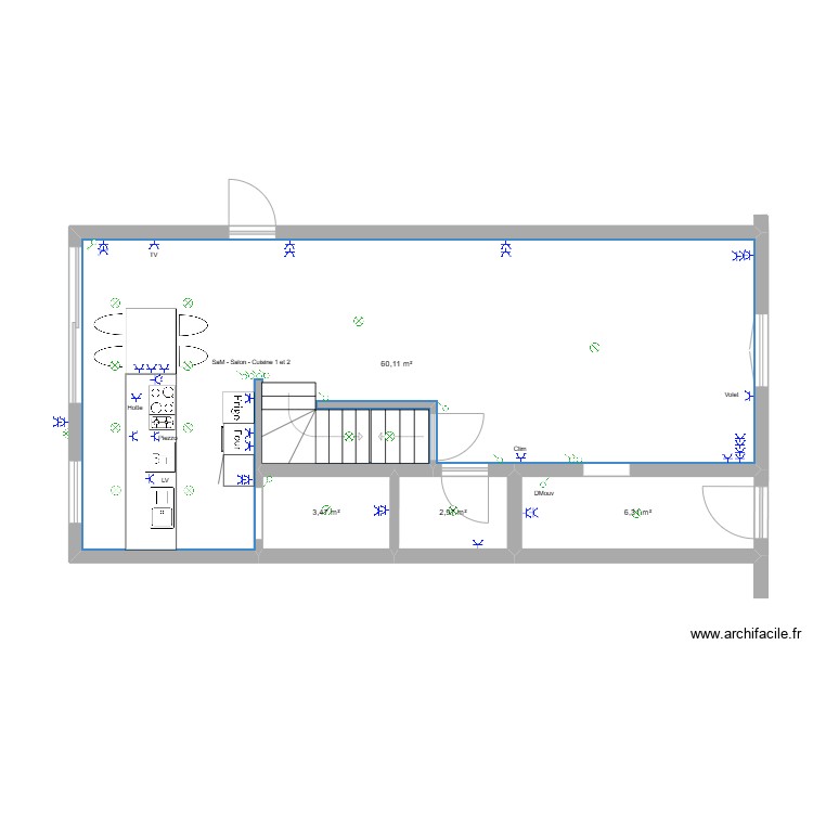
Rez - Cuisine - SaM - Salon
Plan de 0 pièce et 0 m2.

Description
Electricité Rez
Détails du plan
- Plan commencé le 03/11/2024 à 21:10 par Philippe1809
- Modifié le 11/02/2025 à 10:26 par Philippe1809
- Partage : Utilisation
Mots clés
Liste des pièces
Aucune pièce n'a été créé sur ce plan.
Liste des objets
| Nom de l'objet | Nombre |
|---|---|
| Texte | 8 |
| Eclairage applique | 1 |
| Eclairage plafond | 15 |
| Escalier droit | 1 |
| Escalier quart tournant | 1 |
| Évier 1 bac | 1 |
| Four | 1 |
| Ilot central | 1 |
| Interrupteur | 11 |
| Interrupteur bipolaire | 1 |
| Lave vaisselle 12 couverts | 1 |
| Meuble cuisine 1 porte | 1 |
| Plaque gaz 2 foyers | 1 |
| Plaque induction 4 foyers | 1 |
| Prise | 37 |
| Prise 32 A | 1 |
| Réfrigérateur | 1 |
| Table 4 - 6 pers. 80 x 125 cm | 1 |
Lien vers ce plan
Lien pour partager le plan Rez - Cuisine - SaM - Salon
Image du plan
Copier et coller le code ci dessous
Partagez ce plan
Vous aimez ce plan ?
Cliquez sur J'aime et gagnez des fonctionnalités