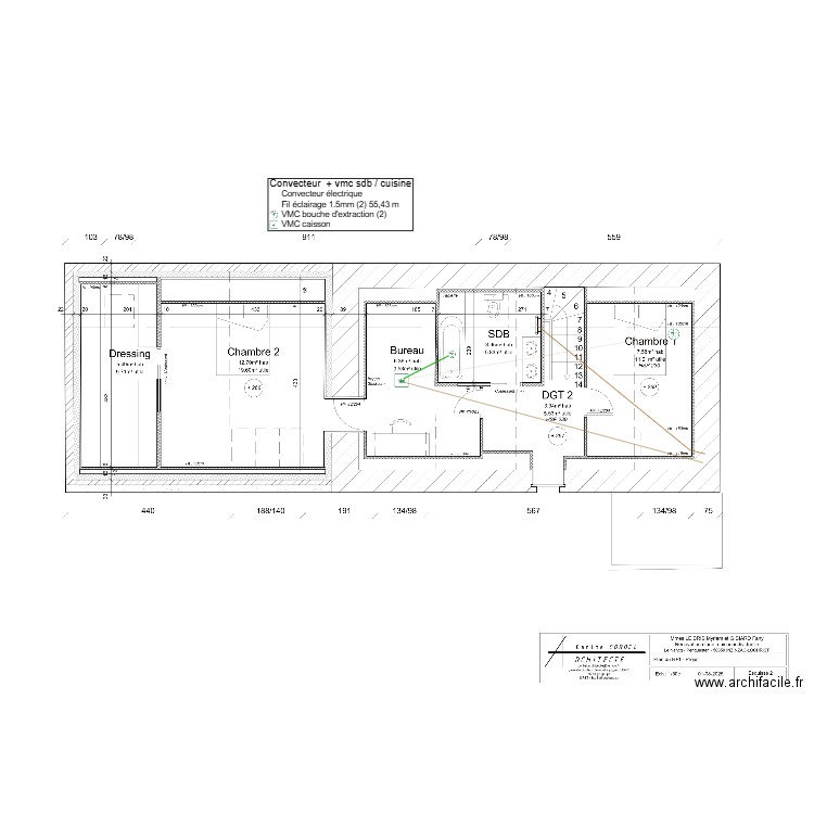
LE BRIS - GIBIARD Convecteur + vmc
Plan de

Détails du plan
- Plan commencé le 20/10/2025 à 23:27 par LMMR56
- Modifié le 30/10/2025 à 22:38 par LMMR56
- Partage : Utilisation
Mots clés
Liste des pièces
Aucune pièce n'a été créé sur ce plan.
Liste des objets
| Nom de l'objet | Nombre |
|---|---|
| Légende | 1 |
| Convecteur électrique | 1 |
| Sèche-serviettes électrique à inertie 1000 W | 1 |
| VMC bouche d'extraction | 2 |
| VMC caisson | 1 |
Lien vers ce plan
Lien pour partager le plan LE BRIS - GIBIARD Convecteur + vmc
Image du plan
Copier et coller le code ci dessous
Partagez ce plan
Vous aimez ce plan ?
Cliquez sur J'aime et gagnez des fonctionnalités