RdC Claira 6
Plan de

Description
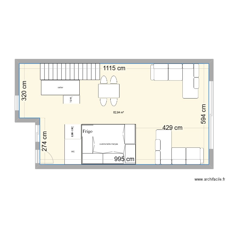
Aménagement avec création de salon, SàM, cuisine, WC, placard d'entrée
Détails du plan
- Plan commencé le 07/12/2024 à 17:10 par Maryse G
- Modifié le 07/12/2024 à 17:53 par Maryse G
- Partage : Utilisation
Mots clés
Liste des pièces
Aucune pièce n'a été créé sur ce plan.
Liste des objets
| Nom de l'objet | Nombre |
|---|---|
| Armoire - penderie 150 cm | 2 |
| Canapé d'angle droit | 2 |
| Escalier droit | 1 |
| Meuble cuisine 2 portes | 5 |
| Réfrigérateur | 1 |
| Table 4 - 6 pers. 80 x 125 cm | 1 |
| WC | 3 |
Lien vers ce plan
Lien pour partager le plan RdC Claira 6
Image du plan
Copier et coller le code ci dessous
Partagez ce plan
Vous aimez ce plan ?
Cliquez sur J'aime et gagnez des fonctionnalités