SDB Amrani
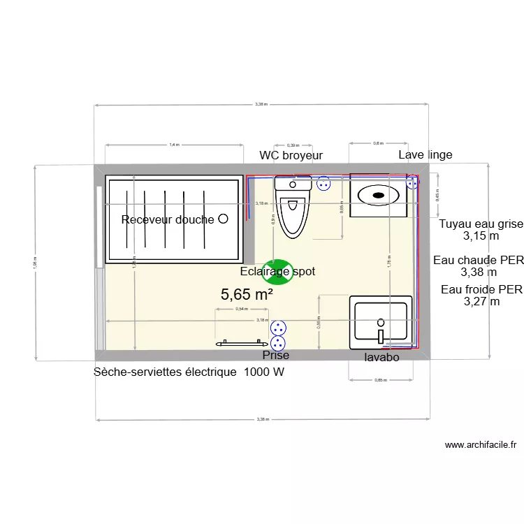
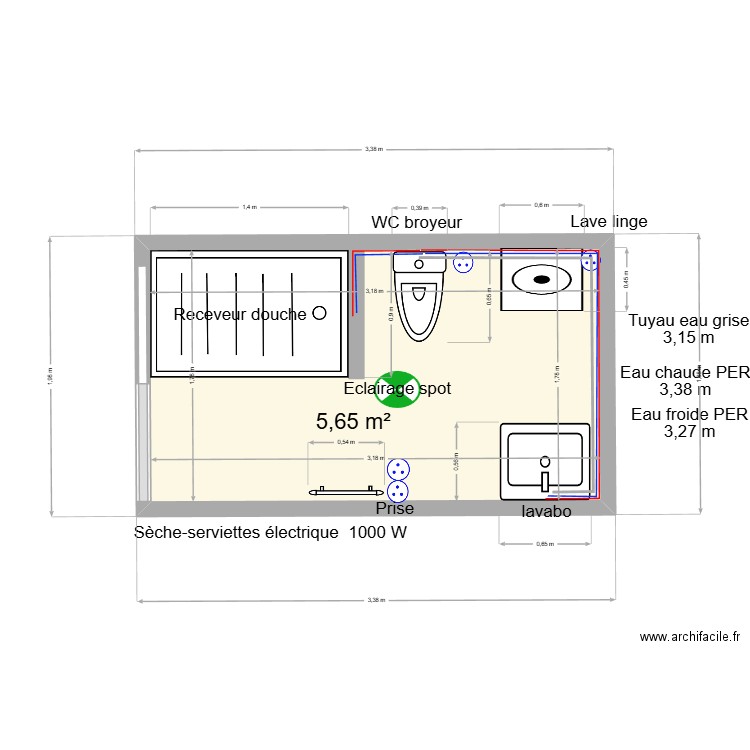
Plan de 1 pièce et 6 m²

Détails du plan
- Plan commencé le 12/01/2026 à 18:48 par Cosy62
- Modifié le 12/01/2026 à 18:48 par Cosy62
- Partage : Utilisation
Mots clés
Liste des pièces
Liste des objets
| Nom de l'objet | Nombre |
|---|---|
| Eclairage spot | 1 |
| Lave linge ouverture dessus | 1 |
| Meuble 1 lavabo integré | 1 |
| Prise | 4 |
| Receveur douche | 1 |
| Sèche-serviettes électrique à inertie 1000 W | 1 |
| WC petite taille | 1 |
Lien vers ce plan
Lien pour partager le plan SDB Amrani
Image du plan
Copier et coller le code ci dessous
Partagez ce plan
Vous aimez ce plan ?
Cliquez sur J'aime et gagnez des fonctionnalités
Plans de 1 pièce et de 0 à 10 m2
Voir tout les plans de 1 pièce et de 0 à 10 m2
Plans de 1 pièce
Voir tout les plans de 1 pièce
Plans de 0 à 10 m2
Voir tout les plans de 0 à 10 m2