Maison Cormeilles-1er Etage-Plomberie_V2
Plan de

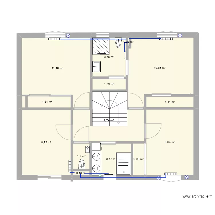
Détails du plan
- Plan commencé le 23/04/2025 à 15:44 par mjerbi
- Modifié le 07/05/2025 à 18:39 par mjerbi
- Partage : Utilisation
Mots clés
Liste des pièces
Aucune pièce n'a été créé sur ce plan.
Liste des objets
| Nom de l'objet | Nombre |
|---|---|
| Bidet | 2 |
| Cabine douche | 1 |
| Escalier demi tournant | 1 |
| Interrupteur | 1 |
| Lave main | 1 |
| Meuble 1 lavabo integré | 1 |
| Meuble 2 vasques | 1 |
| Meuble colonne | 1 |
| Prise | 1 |
| Prise volet roulant | 3 |
| Radiateur à inertie 1500W | 5 |
| Receveur douche | 1 |
| Sèche-serviettes électrique à inertie 1000 W | 2 |
Lien vers ce plan
Lien pour partager le plan Maison Cormeilles-1er Etage-Plomberie_V2
Image du plan
Copier et coller le code ci dessous
Partagez ce plan
Vous aimez ce plan ?
Cliquez sur J'aime et gagnez des fonctionnalités