Bar Pousset Loisirs

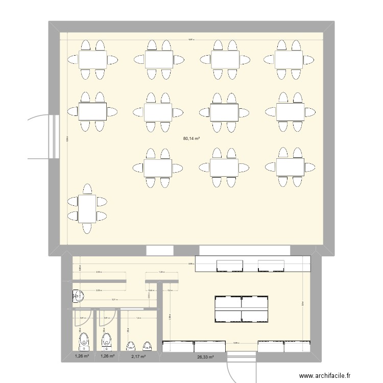
Plan de 5 pièces et 111 m2.

Description

Rénover le bar et les wc de notre salle de fête

Détails du plan

  • Plan commencé le 20/10/25 par Denis1967
  • Modifié le 21/10/25 par Denis1967
  • Partage : Utilisation

Mots clés

A construire A louer A rénover A vendre Appartement Atelier Bureau Chez moi Coupe Duplex Electricité Extension Facade Ferme Garage Jardin Loft Magasin Maison Piscine
  • Liste des pièces

  • Liste des objets

    Nom de l'objet Nombre
    Armoire portes rideaux 10
    Bar 2
    Lavabo 1
    Table 4 - 6 pers. 80 x 125 cm 12
    Urinoir 2
    WC standard 2

    Lien vers ce plan

    Lien pour partager le plan Bar Pousset Loisirs


    Image du plan

    Copier et coller le code ci dessous


    Partagez ce plan


    Vous aimez ce plan ?

    Cliquez sur J'aime et gagnez des fonctionnalités



    Signaler ce plan


    Plans de 5 pièces et de 100 à 120 m2

    maison coline 2

    par freddy97470

    Détails

    maison coline 2

    maison sabrina

    par sabrina332

    Détails

    maison sabrina

    maison de ali et noah

    par ALI ZGUIR

    Détails

    maison de ali et noah

    KERILIN 2

    par jeremy299

    Détails

    KERILIN 2

    LAURENT Fred et Joss

    par Ohms services

    Détails

    LAURENT Fred et Joss

    garage cros

    par ClaireLedoux

    Détails

    garage cros

    frasnes rez-de-chaussée

    par EauxVives

    Détails

    frasnes rez-de-chaussée

    Boucherie

    par redstronger3223

    Détails

    Boucherie

    Voir tout les plans de 5 pièces et de 100 à 120 m2


    Plans de 5 pièces

    Esquisse lot 7 - Variant entrée chambre 1 et ouverture supl sud

    par pvern65

    Détails

    Esquisse lot 7 - Variant entrée chambre 1 et ouverture supl sud

    angèle.02

    par angèle2404

    Détails

    angèle.02

    Esquisse lot 7 - Variant entrée chambre 1

    par pvern65

    Détails

    Esquisse lot 7 - Variant entrée chambre 1

    Esquisse lot 7

    par pvern65

    Détails

    Esquisse lot 7

    Gerald cuisine v3

    par JenR

    Détails

    Gerald cuisine v3

    Mandelieu nouveau public

    par gregsam

    Détails

    Mandelieu nouveau public

    Gerald cuisine v2

    par JenR

    Détails

    Gerald cuisine v2

    CICAT NOGENT LE ROTROU - PROCESS FACILITY

    par ThomasPages

    Détails

    CICAT NOGENT LE ROTROU - PROCESS FACILITY

    Voir tout les plans de 5 pièces


    Plans de 100 à 120 m2

    maison2

    par tititaz

    Détails

    maison2

    plan avec ouvertures à créer/condamner

    par MarineGetten

    Détails

    plan avec ouvertures à créer/condamner

    BURGUES

    par YVES65380

    Détails

    BURGUES

    GHO PIH 6

    par Emylebeau

    Détails

    GHO PIH 6

    SCMITT

    par Aneteau

    Détails

    SCMITT

    version finale

    par Cédricxa

    Détails

    version finale

    Hauteville apres tvx 20/10/2025 - 2

    par Samarcande

    Détails

    Hauteville apres tvx 20/10/2025 - 2

    Voir tout les plans de 100 à 120 m2