Bas Mérens New meublé
Plan de

Détails du plan
- Plan commencé le 10/08/2019 à 13:43 par gilles.miquel
- Modifié le 15/12/2019 à 21:54 par gilles.miquel
- Partage : Lecture
Mots clés
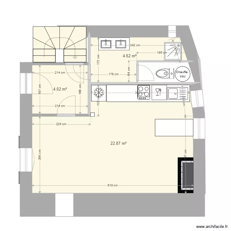
Liste des pièces
Aucune pièce n'a été créé sur ce plan.
Liste des objets
| Nom de l'objet | Nombre |
|---|---|
| Chauffe eau | 1 |
| Cheminée | 1 |
| Escalier demi tournant | 1 |
| Évier 1 bac | 1 |
| Lave vaisselle 12 couverts | 1 |
| Meuble 2 lavabos | 1 |
| Plan de travail | 2 |
| Plaque électrique | 1 |
| Receveur douche | 1 |
| Rectangle | 1 |
| Refrigerateur congelateur | 1 |
| WC standard | 1 |
Lien vers ce plan
Lien pour partager le plan Bas Mérens New meublé
Image du plan
Copier et coller le code ci dessous
Partagez ce plan
Vous aimez ce plan ?
Cliquez sur J'aime et gagnez des fonctionnalités