TEST PLEIN PIED
Plan de 0 pièce et 0 m2.

Détails du plan
- Plan commencé le 27/04/2019 à 02:56 par paul jutier
- Modifié le 12/09/2025 à 22:04 par paul jutier
- Partage : Lecture
Mots clés
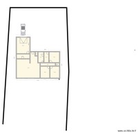
Liste des pièces
- Salle de bain
- Bureau
- CELLIER
- PALIER
- Chambre
- Dressing
- Salle de bain
- WC
- Cuisine
- Salle à manger
- Salon
Liste des objets
| Nom de l'objet | Nombre |
|---|---|
| Armoire - penderie 200 cm | 2 |
| Canapé d'angle gauche | 1 |
| Évier 2 bacs avec meuble | 1 |
| Four | 1 |
| Lave vaisselle 12 couverts | 1 |
| Lit queen size | 1 |
| Plan de travail | 1 |
| Réfrigérateur | 1 |
| Table 6 - 8 pers 180 x 80 cm | 1 |
| Table de chevet | 2 |
| Téléviseur | 1 |
Lien vers ce plan
Lien pour partager le plan TEST PLEIN PIED
Image du plan
Copier et coller le code ci dessous
Partagez ce plan
Vous aimez ce plan ?
Cliquez sur J'aime et gagnez des fonctionnalités
Plans de 0 pièce et de 130 à 150 m2
Voir tout les plans de 0 pièce et de 130 à 150 m2
Plans de 0 pièce
Voir tout les plans de 0 pièce
Plans de 130 à 150 m2
Voir tout les plans de 130 à 150 m2