mobil home plan DE MASSE
Plan de

Détails du plan
- Plan commencé le 04/05/2018 à 05:33 par jean diaz
- Modifié le 04/05/2018 à 05:33 par jean diaz
- Partage : Utilisation
Mots clés
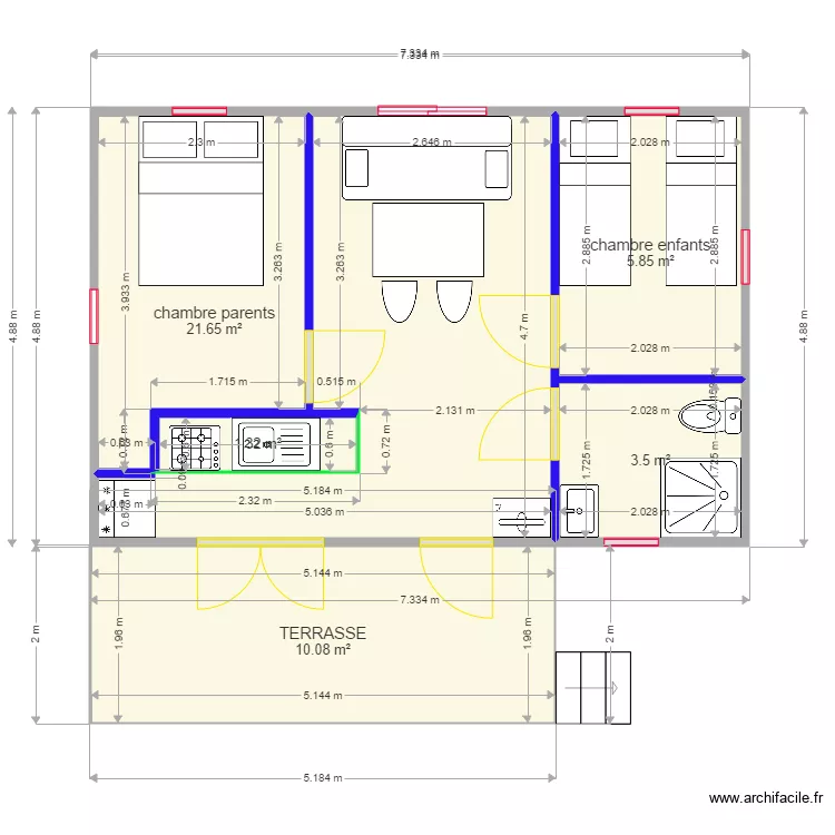
Liste des pièces
Aucune pièce n'a été créé sur ce plan.
Liste des objets
| Nom de l'objet | Nombre |
|---|---|
| Banquette clic-clac 3 places | 1 |
| Congélateur coffre 200 L | 1 |
| Escalier droit | 1 |
| Évier 1 bac avec meuble | 1 |
| Lit 1 pers | 2 |
| Lit double standard | 1 |
| Meuble 1 lavabo integré | 1 |
| Plaque gaz | 1 |
| Receveur douche | 1 |
| Table 4 - 6 pers. 80 x 125 cm | 1 |
| Téléviseur avec meuble | 1 |
| WC standard | 1 |
Lien vers ce plan
Lien pour partager le plan mobil home plan DE MASSE
Image du plan
Copier et coller le code ci dessous
Partagez ce plan
Vous aimez ce plan ?
Cliquez sur J'aime et gagnez des fonctionnalités