JIFFARD
Plan de 1 et 4 m²

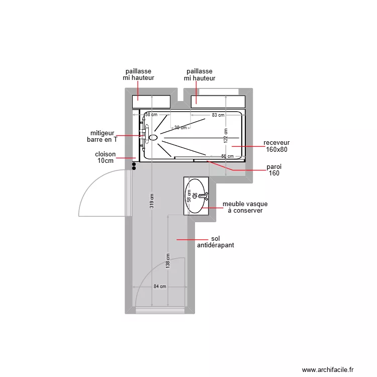
Détails du plan
- Plan commencé le 03/02/2026 à 14:59 par JamelPMR
- Modifié le 03/02/2026 à 15:14 par JamelPMR
- Partage : Utilisation
Mots clés
Liste des pièces
Liste des objets
| Nom de l'objet | Nombre |
|---|---|
| Texte | 8 |
| colonne | 2 |
| Meuble lavabo intégré | 1 |
| paillasse / banc | 3 |
| paroi | 2 |
| Receveur douche | 1 |
| robinet mitigeur | 1 |
| Sèche-serviettes électrique à inertie 1000 W | 1 |
Lien vers ce plan
Lien pour partager le plan JIFFARD
Image du plan
Copier et coller le code ci dessous
Partagez ce plan
Vous aimez ce plan ?
Cliquez sur J'aime et gagnez des fonctionnalités
Plans de 1 pièce et de -0 à 10 m2
Voir tout les plans de 1 pièce et de -0 à 10 m2
Plans de 1 pièce
Voir tout les plans de 1 pièce
Plans de -0 à 10 m2
Voir tout les plans de -0 à 10 m2