Cuisine DEB'HO TRAITEUR
Plan de

Détails du plan
- Plan commencé le 09/10/2025 à 03:18 par GillesKROMWEL
- Modifié le 09/10/2025 à 03:24 par GillesKROMWEL
- Partage : Utilisation
Mots clés
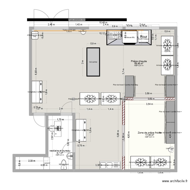
Liste des pièces
Aucune pièce n'a été créé sur ce plan.
Liste des objets
| Nom de l'objet | Nombre |
|---|---|
| Armoire | 1 |
| Bureau 100 X 50 cm | 1 |
| Compteur gaz | 1 |
| Congélateur coffre 200 L | 2 |
| Évier 2 bacs avec meuble | 1 |
| Four | 1 |
| Hotte murale | 1 |
| Ilot central | 1 |
| Lavabo | 3 |
| Meuble cuisine 3 tiroirs | 4 |
| Piano de cuisson 5 foyers | 1 |
| Poteau béton | 2 |
| Poubelle | 1 |
| Refrigerateur congelateur | 6 |
| WC standard | 1 |
Lien vers ce plan
Lien pour partager le plan Cuisine DEB'HO TRAITEUR
Image du plan
Copier et coller le code ci dessous
Partagez ce plan
Vous aimez ce plan ?
Cliquez sur J'aime et gagnez des fonctionnalités