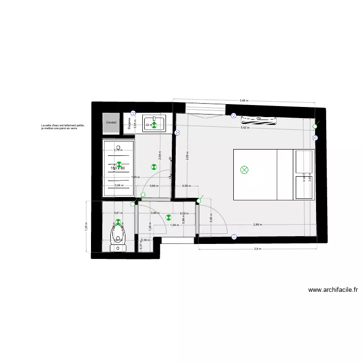
APPART N°4 : CHAMBRE 2 + SDE + WC
Plan de

Détails du plan
- Plan commencé le 02/09/2025 à 13:48 par labographic
- Modifié le 04/09/2025 à 21:11 par labographic
- Partage : Utilisation
Mots clés
Liste des pièces
Aucune pièce n'a été créé sur ce plan.
Liste des objets
| Nom de l'objet | Nombre |
|---|---|
| Texte | 2 |
| Climatiseur Split interieur | 1 |
| Eclairage plafond | 1 |
| Eclairage spot | 5 |
| Interrupteur | 4 |
| Lit queen size | 1 |
| Meuble 1 lavabo integré | 1 |
| Plan de travail | 1 |
| Poteau béton | 1 |
| Prise | 5 |
| Receveur douche | 1 |
| Sèche-serviettes électrique à inertie 1000 W | 1 |
| WC standard | 1 |
Lien vers ce plan
Lien pour partager le plan APPART N°4 : CHAMBRE 2 + SDE + WC
Image du plan
Copier et coller le code ci dessous
Partagez ce plan
Vous aimez ce plan ?
Cliquez sur J'aime et gagnez des fonctionnalités