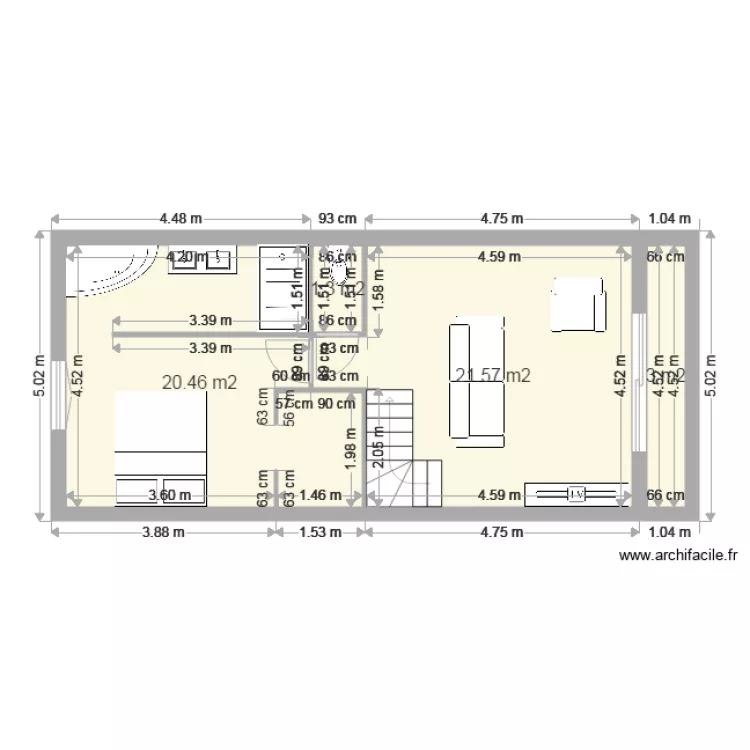
58 BEAUVAL 1er etage bi
Plan de

Détails du plan
- Plan commencé le 10/07/2015 à 18:40 par guillaume thibert
- Modifié le 10/07/2015 à 18:40 par guillaume thibert
- Partage : Utilisation
Mots clés
Liste des pièces
Aucune pièce n'a été créé sur ce plan.
Liste des objets
| Nom de l'objet | Nombre |
|---|---|
| Baignoire d'angle | 1 |
| Canapé 3 places | 1 |
| Escalier quart tournant | 1 |
| Fauteuil 1 place | 1 |
| Lit queen size | 1 |
| Meuble 2 lavabos | 1 |
| Receveur douche | 1 |
| Téléviseur avec meuble bas | 1 |
| WC standard | 1 |
Lien vers ce plan
Lien pour partager le plan 58 BEAUVAL 1er etage bi
Image du plan
Copier et coller le code ci dessous
Partagez ce plan
Vous aimez ce plan ?
Cliquez sur J'aime et gagnez des fonctionnalités