3 pièces Bat B RDC 1er 2eme
Plan de

Détails du plan
- Plan commencé le 01/05/2021 à 21:44 par duperrierflo
- Modifié le 01/05/2021 à 21:44 par duperrierflo
- Partage : Utilisation
Mots clés
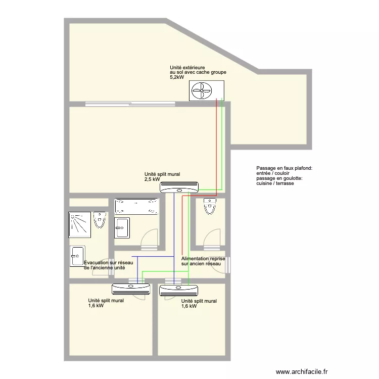
Liste des pièces
Aucune pièce n'a été créé sur ce plan.
Liste des objets
| Nom de l'objet | Nombre |
|---|---|
| Texte | 7 |
| Baignoire îlot rectangulaire | 1 |
| Climatiseur bloc exterieur | 1 |
| Climatiseur Split interieur | 3 |
| Meuble 1 lavabo integré | 2 |
| Receveur douche | 1 |
| WC petite taille | 2 |
Lien vers ce plan
Lien pour partager le plan 3 pièces Bat B RDC 1er 2eme
Image du plan
Copier et coller le code ci dessous
Partagez ce plan
Vous aimez ce plan ?
Cliquez sur J'aime et gagnez des fonctionnalités