Aménagement Bureau Thiers Mars 2022 01
Plan de

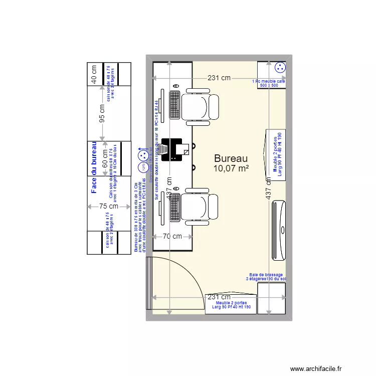
Détails du plan
- Plan commencé le 07/03/2022 à 17:11 par pascalemma
- Modifié le 07/03/2022 à 17:11 par pascalemma
- Partage : Utilisation
Mots clés
Liste des pièces
Aucune pièce n'a été créé sur ce plan.
Liste des objets
| Nom de l'objet | Nombre |
|---|---|
| Texte | 11 |
| Armoire | 1 |
| Armoire portes battantes | 2 |
| Caisson à tiroir | 1 |
| Climatiseur Split interieur | 1 |
| Etagère redimenssionnable | 6 |
| Fauteuil de bureau | 2 |
| Imprimante | 1 |
| Ordinateur | 2 |
| Prise | 1 |
| Prise haute | 1 |
| Prise réseau RJ45 | 1 |
| Rectangle | 4 |
Lien vers ce plan
Lien pour partager le plan Aménagement Bureau Thiers Mars 2022 01
Image du plan
Copier et coller le code ci dessous
Partagez ce plan
Vous aimez ce plan ?
Cliquez sur J'aime et gagnez des fonctionnalités