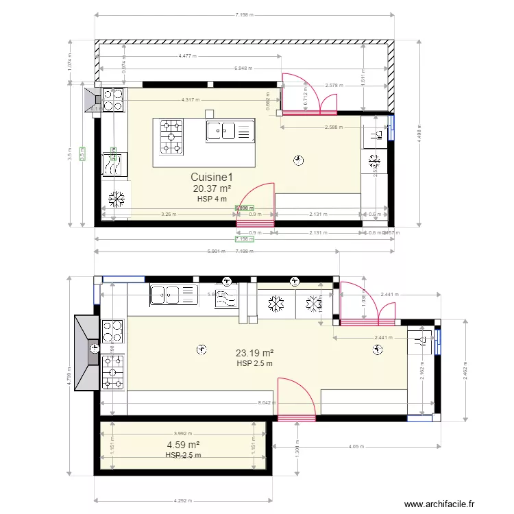
plan de Cu avec Ilôt
Plan de

Détails du plan
- Plan commencé le 09/02/2021 à 19:56 par herve1974BROU04
- Modifié le 10/02/2021 à 21:49 par herve1974BROU04
- Partage : Utilisation
Mots clés
Liste des pièces
Aucune pièce n'a été créé sur ce plan.
Liste des objets
| Nom de l'objet | Nombre |
|---|---|
| Évier 2 bacs avec meuble | 2 |
| Four | 2 |
| Four micro ondes | 2 |
| Hotte murale | 2 |
| Lave vaisselle 12 couverts | 2 |
| Piano de cuisson 5 foyers | 2 |
| Plan de travail | 10 |
| Plaque induction 4 foyers avec meuble | 2 |
| Rectangle | 15 |
| Refrigerateur americain | 4 |
| VMC bouche d'extraction | 6 |
Lien vers ce plan
Lien pour partager le plan plan de Cu avec Ilôt
Image du plan
Copier et coller le code ci dessous
Partagez ce plan
Vous aimez ce plan ?
Cliquez sur J'aime et gagnez des fonctionnalités