Soussol002
Plan de

Description
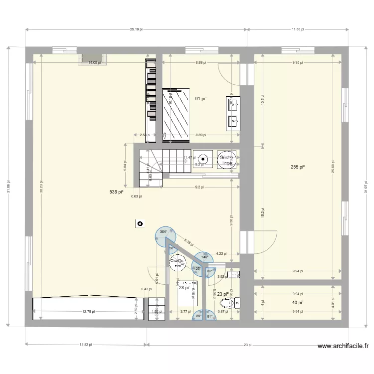
Aménagement d'une salle de bain au sous-sol. Changement des ouvertures/accès à la chambre et à la salle de bain. Rénovation plancher, plafond. Isolation des murs.
Détails du plan
- Plan commencé le 28/04/2019 à 15:21 par NatK
- Modifié le 23/11/2019 à 19:15 par NatK
- Partage : Utilisation
Mots clés
Liste des pièces
Aucune pièce n'a été créé sur ce plan.
Liste des objets
| Nom de l'objet | Nombre |
|---|---|
| Armoire portes battantes | 1 |
| Bibliothèque | 1 |
| Cabine douche | 1 |
| Chaudière à fioul | 1 |
| Chauffe eau | 1 |
| Cheminée en pierre | 1 |
| Escalier droit | 1 |
| Escalier quart tournant | 1 |
| Lave linge hublot | 1 |
| Lave main | 1 |
| Meuble 2 lavabos | 1 |
| Sèche linge | 1 |
| WC standard | 1 |
Lien vers ce plan
Lien pour partager le plan Soussol002
Image du plan
Copier et coller le code ci dessous
Partagez ce plan
Vous aimez ce plan ?
Cliquez sur J'aime et gagnez des fonctionnalités