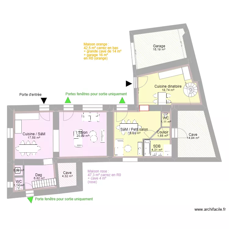
Poleymieux - division OK RDC totale
Plan de

Détails du plan
- Plan commencé le 01/06/2023 à 11:55 par adarrissa
- Modifié le 01/06/2023 à 13:47 par adarrissa
- Partage : Utilisation
Mots clés
Liste des pièces
Aucune pièce n'a été créé sur ce plan.
Liste des objets
| Nom de l'objet | Nombre |
|---|---|
| Texte | 5 |
| Baignoire îlot rectangulaire | 1 |
| Bar | 4 |
| Canapé 2 places | 3 |
| Escalier colimaçon | 1 |
| Escalier droit | 1 |
| Lave linge hublot | 1 |
| Meuble 2 lavabos | 1 |
| Receveur douche | 1 |
| Table 4 - 6 pers. 80 x 125 cm | 1 |
| Table basse | 3 |
| Téléviseur avec meuble | 2 |
| Triangle | 5 |
| WC standard | 1 |
| WC suspendu | 1 |
Lien vers ce plan
Lien pour partager le plan Poleymieux - division OK RDC totale
Image du plan
Copier et coller le code ci dessous
Partagez ce plan
Vous aimez ce plan ?
Cliquez sur J'aime et gagnez des fonctionnalités