Chambre 42
Plan de

Description
Réhabilitation des chambres individuelles
Détails du plan
- Plan commencé le 07/06/2021 à 22:10 par sebbeziau
- Modifié le 07/06/2021 à 22:10 par sebbeziau
- Partage : Utilisation
Mots clés
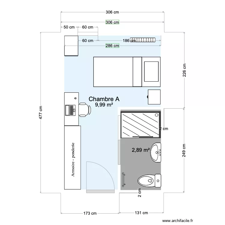
Liste des pièces
Aucune pièce n'a été créé sur ce plan.
Liste des objets
| Nom de l'objet | Nombre |
|---|---|
| Armoire - penderie 200 cm | 1 |
| Bureau 100 X 50 cm | 1 |
| Cabine douche | 1 |
| Caisson à tiroir | 1 |
| Lavabo | 1 |
| Lit 1 pers | 1 |
| Radiateur à inertie 2000W | 1 |
| Sèche-serviettes électrique à inertie 1000 W | 1 |
| Table de chevet | 1 |
| WC standard | 1 |
Lien vers ce plan
Lien pour partager le plan Chambre 42
Image du plan
Copier et coller le code ci dessous
Partagez ce plan
Vous aimez ce plan ?
Cliquez sur J'aime et gagnez des fonctionnalités