plan ELEC
Plan de

Détails du plan
- Plan commencé le 03/04/2021 à 16:25 par jessemoine
- Modifié le 03/04/2021 à 20:45 par jessemoine
- Partage : Utilisation
Mots clés
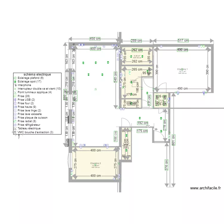
Liste des pièces
Aucune pièce n'a été créé sur ce plan.
Liste des objets
| Nom de l'objet | Nombre |
|---|---|
| Légende | 1 |
| Boussole 4 | 1 |
| Eclairage plafond | 6 |
| Eclairage spot | 17 |
| Interphone | 1 |
| Interrupteur double va et vient | 10 |
| Point lumineux applique | 4 |
| Prise | 36 |
| Prise four | 2 |
| Prise haute | 9 |
| Prise lave linge | 2 |
| Prise lave vaisselle | 1 |
| Prise plaque de cuisson | 1 |
| Prise réfrigérateur | 1 |
| Tableau électrique | 1 |
| VMC bouche d'extraction | 3 |
Lien vers ce plan
Lien pour partager le plan plan ELEC
Image du plan
Copier et coller le code ci dessous
Partagez ce plan
Vous aimez ce plan ?
Cliquez sur J'aime et gagnez des fonctionnalités