Markelbach 115 Duplex bis
Plan de

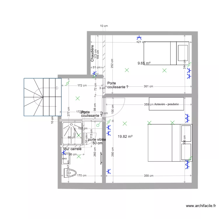
Détails du plan
- Plan commencé le 07/05/2019 à 10:46 par Codabel DVPT
- Modifié le 26/07/2019 à 16:26 par Codabel DVPT
- Partage : Utilisation
Mots clés
Liste des pièces
Aucune pièce n'a été créé sur ce plan.
Liste des objets
| Nom de l'objet | Nombre |
|---|---|
| Texte | 5 |
| Armoire - penderie 150 cm | 1 |
| Escalier demi tournant | 1 |
| Interrupteur | 1 |
| Interrupteur va et vient | 5 |
| Lit 1 pers | 1 |
| Lit double standard | 1 |
| Meuble 1 lavabo integré | 1 |
| Point lumineux | 8 |
| Prise | 12 |
| Receveur douche | 1 |
| Sèche-serviettes électrique à inertie 1000 W | 1 |
| WC suspendu | 1 |
Lien vers ce plan
Lien pour partager le plan Markelbach 115 Duplex bis
Image du plan
Copier et coller le code ci dessous
Partagez ce plan
Vous aimez ce plan ?
Cliquez sur J'aime et gagnez des fonctionnalités