Colbert plomberie V2
Plan de

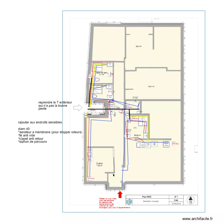
Détails du plan
- Plan commencé le 18/08/2018 à 15:33 par albaninvest
- Modifié le 26/04/2019 à 11:56 par albaninvest
- Partage : Lecture
Mots clés
Liste des pièces
Aucune pièce n'a été créé sur ce plan.
Liste des objets
| Nom de l'objet | Nombre |
|---|---|
| Texte | 4 |
| Caméra de surveillance | 1 |
| Cercle | 1 |
| Chauffe eau | 2 |
| Collecteur 6 départs | 2 |
| Compteur d'eau | 2 |
| Évier 1 bac | 2 |
| Flêche | 2 |
| Lave linge hublot | 2 |
| Lave vaisselle 9 couverts | 2 |
| Meuble 1 lavabo integré | 3 |
| Receveur douche | 3 |
| Sèche linge | 2 |
| Vanne de contrôle | 1 |
| Vanne manuelle | 2 |
| WC standard | 3 |
Lien vers ce plan
Lien pour partager le plan Colbert plomberie V2
Image du plan
Copier et coller le code ci dessous
Partagez ce plan
Vous aimez ce plan ?
Cliquez sur J'aime et gagnez des fonctionnalités