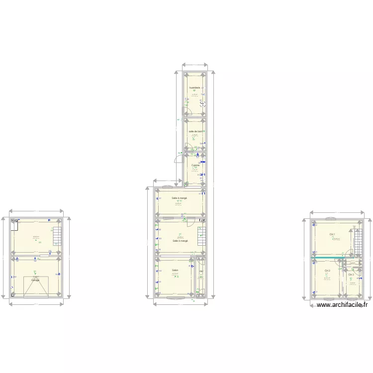
maison rudy
Plan de

Détails du plan
- Plan commencé le 29/07/2019 à 17:46 par christec
- Modifié le 04/07/2020 à 14:34 par christec
- Partage : Utilisation
Mots clés
Liste des pièces
Aucune pièce n'a été créé sur ce plan.
Liste des objets
| Nom de l'objet | Nombre |
|---|---|
| Texte | 94 |
| Chaudière à fioul | 1 |
| Chauffe eau | 1 |
| Compteur électrique | 1 |
| Eclairage applique | 6 |
| Eclairage plafond | 14 |
| Escalier droit | 3 |
| Interrupteur va et vient | 25 |
| Prise | 66 |
| Prise de terre | 1 |
| Prise four | 1 |
| Prise lave linge | 1 |
| Prise lave vaisselle | 1 |
| Prise plaque de cuisson | 1 |
| Prise sèche linge | 1 |
| Tableau électrique Basse Tension | 1 |
Lien vers ce plan
Lien pour partager le plan maison rudy
Image du plan
Copier et coller le code ci dessous
Partagez ce plan
Vous aimez ce plan ?
Cliquez sur J'aime et gagnez des fonctionnalités