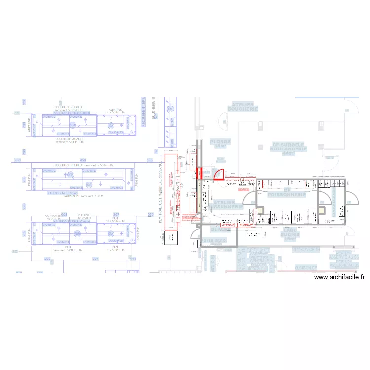
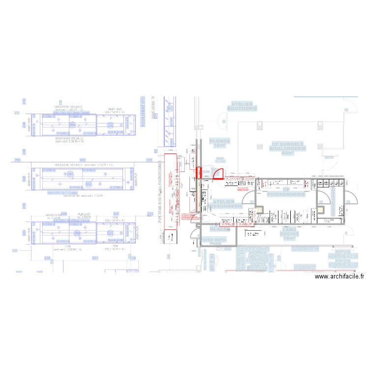
HU Colmar Projet 2025
Plan de

Détails du plan
- Plan commencé le 24/10/2025 à 07:40 par anthonysenejoux
- Modifié le 24/10/2025 à 12:21 par anthonysenejoux
- Partage : Lecture
Mots clés
Liste des pièces
Aucune pièce n'a été créé sur ce plan.
Liste des objets
| Nom de l'objet | Nombre |
|---|---|
| Texte | 4 |
| Armoire Hygiène Inox | 1 |
| Centrale de nettoyage | 1 |
| Chariot 600x400 | 2 |
| Chariot GN1/1 | 3 |
| Combiné de Préparation | 1 |
| Lave mains 350x420 | 1 |
| Plateau Roulant | 3 |
| Pupitre à Roulettes | 1 |
Lien vers ce plan
Lien pour partager le plan HU Colmar Projet 2025
Image du plan
Copier et coller le code ci dessous
Partagez ce plan
Vous aimez ce plan ?
Cliquez sur J'aime et gagnez des fonctionnalités