L'or Déco Vidéo
Plan de

Détails du plan
- Plan commencé le 07/11/2024 à 16:03 par Alexis OPTI Sécurité
- Modifié le 07/11/2024 à 16:03 par Alexis OPTI Sécurité
- Partage : Utilisation
Mots clés
Liste des pièces
Aucune pièce n'a été créé sur ce plan.
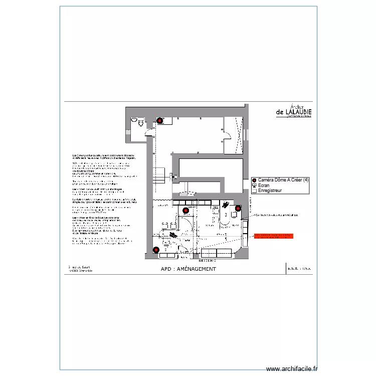
Liste des objets
| Nom de l'objet | Nombre |
|---|---|
| Légende | 1 |
| Caméra Dôme A Créer | 4 |
| Ecran | 1 |
| Enregistreur | 1 |
Lien vers ce plan
Lien pour partager le plan L'or Déco Vidéo
Image du plan
Copier et coller le code ci dessous
Partagez ce plan
Vous aimez ce plan ?
Cliquez sur J'aime et gagnez des fonctionnalités