michel 1a el1
Plan de

Détails du plan
- Plan commencé le 03/02/2022 à 08:18 par jacqueline1948
- Modifié le 27/02/2022 à 11:15 par jacqueline1948
- Partage : Utilisation
Mots clés
Liste des pièces
Aucune pièce n'a été créé sur ce plan.
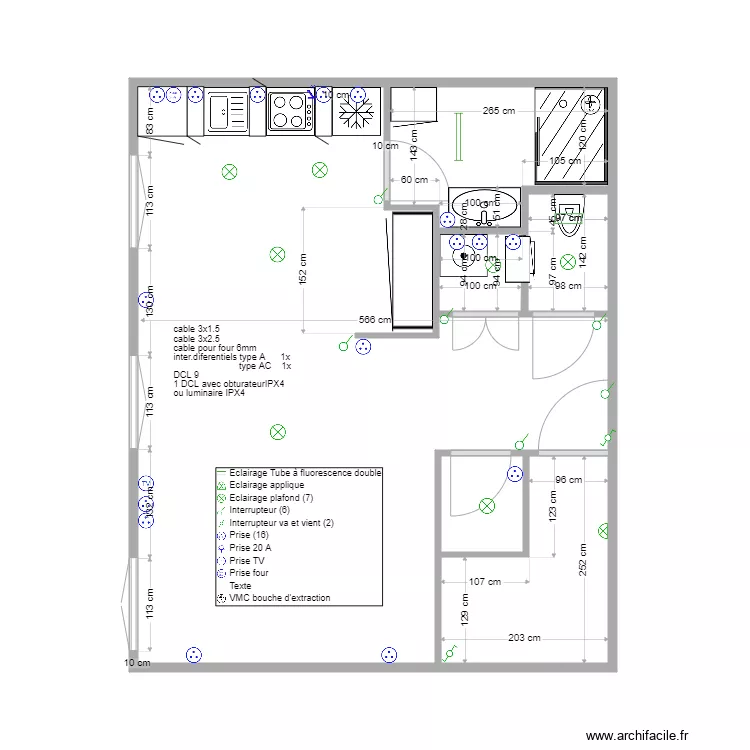
Liste des objets
| Nom de l'objet | Nombre |
|---|---|
| Texte | 1 |
| Légende | 1 |
| chauffe eau | 1 |
| Eclairage applique | 1 |
| Eclairage plafond | 7 |
| Eclairage Tube à fluorescence double | 1 |
| Évier 1 bac avec meuble | 1 |
| Interrupteur | 6 |
| Interrupteur va et vient | 2 |
| Lave linge hublot | 1 |
| Meuble colonne | 3 |
| Meuble cuisine 1 porte | 4 |
| Meuble lavabo intégré | 1 |
| Plaque électrique avec meuble | 1 |
| Prise | 16 |
| Prise 20 A | 1 |
| Prise four | 1 |
| Prise TV | 1 |
| Réfrigérateur | 1 |
| VMC bouche d'extraction | 1 |
| WC suspendu | 1 |
Lien vers ce plan
Lien pour partager le plan michel 1a el1
Image du plan
Copier et coller le code ci dessous
Partagez ce plan
Vous aimez ce plan ?
Cliquez sur J'aime et gagnez des fonctionnalités