nouveau plan fevrier 2022
Plan de

Détails du plan
- Plan commencé le 05/02/2022 à 19:54 par careon
- Modifié le 05/02/2022 à 19:56 par careon
- Partage : Utilisation
Mots clés
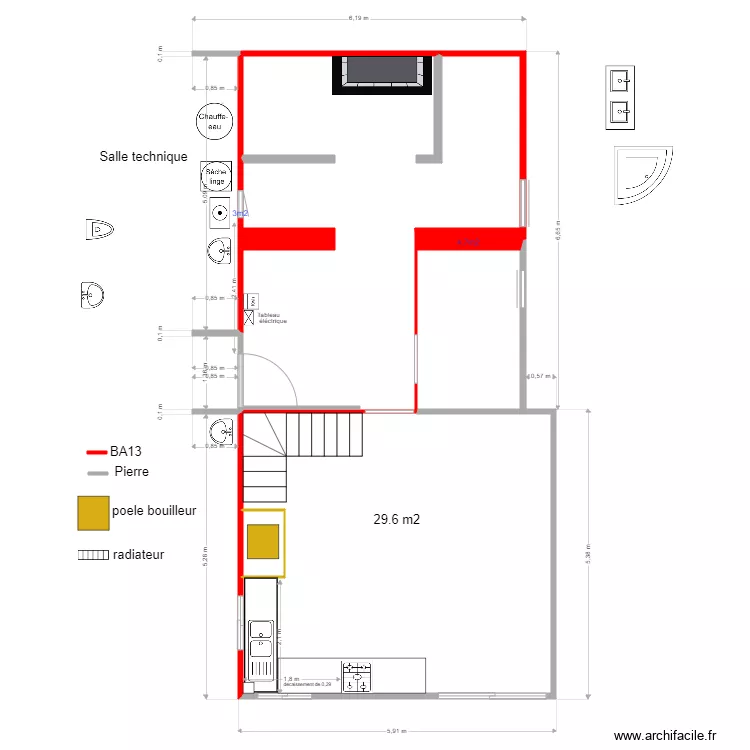
Liste des pièces
Aucune pièce n'a été créé sur ce plan.
Liste des objets
| Nom de l'objet | Nombre |
|---|---|
| Texte | 10 |
| Baignoire d'angle | 1 |
| Chauffe eau | 1 |
| Cheminée | 1 |
| Compteur électrique | 1 |
| Escalier quart tournant | 1 |
| Etagère redimenssionnable | 1 |
| Évier 2 bacs | 1 |
| Lavabo | 3 |
| Lave linge ouverture dessus | 1 |
| Meuble 2 lavabos | 1 |
| Piano de cuisson 5 foyers | 1 |
| Radiateur à inertie 1000W | 1 |
| Rectangle | 4 |
| Sèche linge | 1 |
| Tableau électrique | 1 |
| WC suspendu | 1 |
Lien vers ce plan
Lien pour partager le plan nouveau plan fevrier 2022
Image du plan
Copier et coller le code ci dessous
Partagez ce plan
Vous aimez ce plan ?
Cliquez sur J'aime et gagnez des fonctionnalités