LYVET SUGGLIANO
Plan de

Description
SDB SOL PEINTURE
Détails du plan
- Plan commencé le 10/09/2021 à 13:23 par anthony.mace.lamaisondestravaux.com
- Modifié le 21/09/2021 à 21:57 par anthony.mace.lamaisondestravaux.com
- Partage : Utilisation
Mots clés
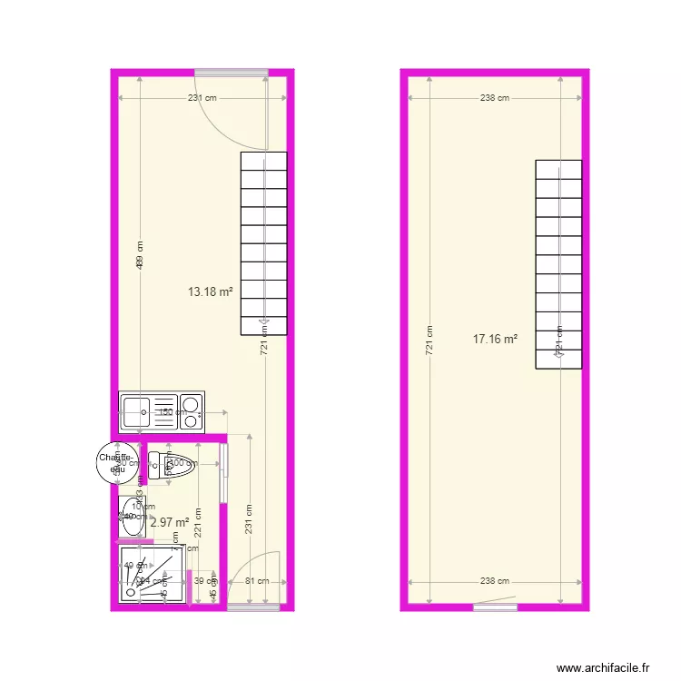
Liste des pièces
Aucune pièce n'a été créé sur ce plan.
Liste des objets
| Nom de l'objet | Nombre |
|---|---|
| Chauffe eau | 1 |
| Escalier droit | 2 |
| Kitchenette électrique | 1 |
| Meuble lavabo intégré | 1 |
| Receveur douche | 1 |
| WC petite taille | 1 |
Lien vers ce plan
Lien pour partager le plan LYVET SUGGLIANO
Image du plan
Copier et coller le code ci dessous
Partagez ce plan
Vous aimez ce plan ?
Cliquez sur J'aime et gagnez des fonctionnalités