ondes etage 2
Plan de

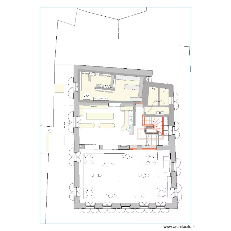
Détails du plan
- Plan commencé le 15/01/2025 à 08:33 par YannKshanghai
- Modifié le 21/01/2025 à 10:37 par YannKshanghai
- Partage : Utilisation
Mots clés
Liste des pièces
Aucune pièce n'a été créé sur ce plan.
Liste des objets
| Nom de l'objet | Nombre |
|---|---|
| Ascenseur | 1 |
| Buffet | 1 |
| Chaise | 5 |
| Évier 2 bacs | 2 |
| Lave vaisselle 12 couverts | 2 |
| Meuble 2 lavabos | 1 |
| Meuble cuisine 3 tiroirs | 4 |
| Meuble cuisine haut 80 cm | 3 |
| Plan de travail | 13 |
| Plan de travail chaussette | 1 |
| Réfrigérateur | 4 |
| Table 4 pers. 90 x 90 cm | 4 |
| Table ronde 2 pers. 60 x 60 cm | 6 |
| WC suspendu | 2 |
Lien vers ce plan
Lien pour partager le plan ondes etage 2
Image du plan
Copier et coller le code ci dessous
Partagez ce plan
Vous aimez ce plan ?
Cliquez sur J'aime et gagnez des fonctionnalités