Plan ACE TARAVAO
Plan de

Description
Modification du 10/04/2024
Détails du plan
- Plan commencé le 11/04/2024 à 01:46 par GT77
- Modifié le 21/05/2024 à 04:50 par GT77
- Partage : Utilisation
Mots clés
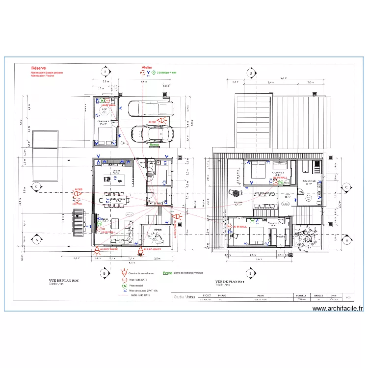
Liste des pièces
Aucune pièce n'a été créé sur ce plan.
Liste des objets
| Nom de l'objet | Nombre |
|---|---|
| Texte | 38 |
| B INFO | 3 |
| Borne | 3 |
| Détecteur de mouvement | 7 |
| Eclairage plafond | 1 |
| Prise | 35 |
| Prise réseau RJ45 | 7 |
| Prise TV | 5 |
| Tableau électrique Basse Tension | 1 |
Lien vers ce plan
Lien pour partager le plan Plan ACE TARAVAO
Image du plan
Copier et coller le code ci dessous
Partagez ce plan
Vous aimez ce plan ?
Cliquez sur J'aime et gagnez des fonctionnalités