Oli
Plan de

Description
maison
Détails du plan
- Plan commencé le 21/05/2025 à 10:22 par Olive1988
- Modifié le 08/07/2025 à 08:31 par Olive1988
- Partage : Lecture
Mots clés
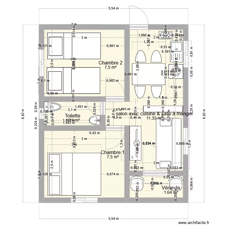
Liste des pièces
Aucune pièce n'a été créé sur ce plan.
Liste des objets
| Nom de l'objet | Nombre |
|---|---|
| Banquette clic-clac 3 places | 1 |
| Chaise | 2 |
| Etagère redimenssionnable | 1 |
| Évier 1 bac | 1 |
| Lavabo | 1 |
| Lit enfant | 2 |
| Lit queen size | 1 |
| Plaque gaz 2 foyers | 1 |
| Réfrigérateur | 1 |
| Robinet douche/bain | 1 |
| Table 4 - 6 pers. 80 x 125 cm | 1 |
| Téléviseur avec meuble | 1 |
| WC petite taille | 1 |
Lien vers ce plan
Lien pour partager le plan Oli
Image du plan
Copier et coller le code ci dessous
Partagez ce plan
Vous aimez ce plan ?
Cliquez sur J'aime et gagnez des fonctionnalités